Galvanized — Built to Last

Sectionalizers engineered for the field

Hot‑dip galvanized, powder‑coated enclosures for underground sectionalizing, tapping, and terminations. Made in the USA by ACDC Boss.

Browse Models Product Flyer
ACDC Boss Sectionalizer

Features & Benefits

Hot‑dip galvanized steel

Zinc‑iron alloy layer delivers superior corrosion resistance and abrasion self‑healing.

Powder‑coated finish

UV and weather protection for long‑term outdoor performance. Meets ANSI C57.12.28

Universal mounting design

Accepts 200 A, 600 A, and 900 A junctions for flexible configurations.

Operator‑friendly access

Top‑hinged lid and wide opening for single‑person servicing.

Lockout‑ready security

Penta‑bolt latch with padlock/LOTO provision.

Grounding & lifting points

Stainless 1/2"‑13 and 1/4"‑20 weld nuts provided where needed.

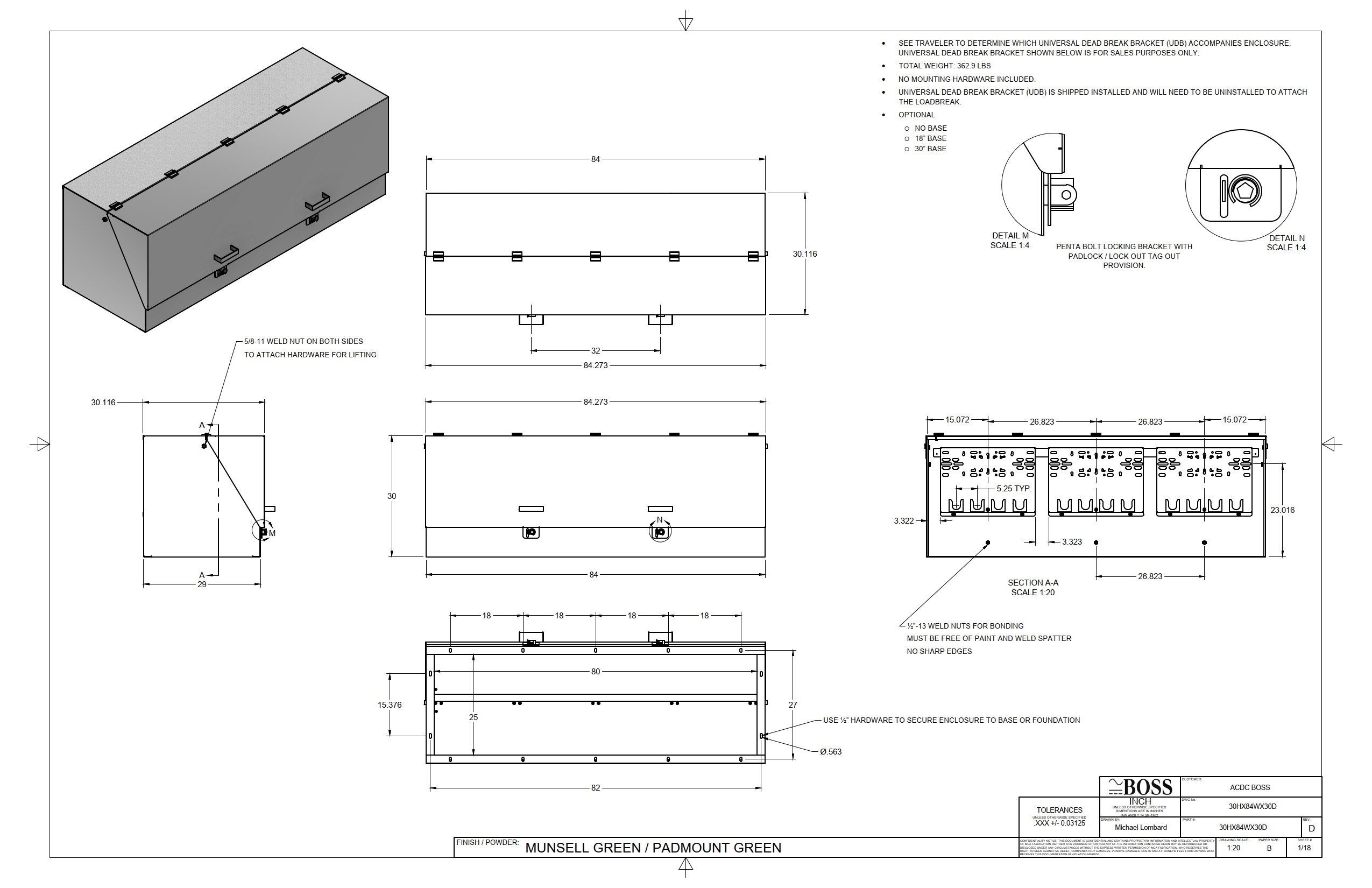
30H × 84W × 30D — Technical Snapshot

Sectionalizer Photo
Product image
  • Height: 30 in
  • Width: 84 in
  • Depth: 30 in
  • Finish: Padmount Green (powder coat)
  • Material: Galvanized steel
Typical Drawing
Typical Drawing — Galvanized Steel Construction
Applications
  • Underground sectionalizing and termination
  • Pad‑mounted distribution systems
  • Harsh or coastal environments
  • Long‑term outdoor utility installations

ACDC Boss Sectionalizer Model Range

ModelHeightWidthDepth Base OptionsNotes Enclosure Drawing18" Base30" Base
30HX30WX22D30"30"22"None / 18" / 30"Brackets: UDB1, UDB2DownloadDownloadDownload
30HX30WX30D30"30"30"None / 18" / 30"Brackets: UDB1, UDB2DownloadDownloadDownload
30HX30WX38D30"30"38"None / 18" / 30"Brackets: UDB1, UDB2DownloadDownloadDownload
30HX66WX22D30"66"22"None / 18" / 30"Brackets: UDB1DownloadDownloadDownload
30HX66WX30D30"66"30"None / 18" / 30"Brackets: UDB1DownloadDownloadDownload
30HX66WX38D30"66"38"None / 18" / 30"Brackets: UDB1DownloadDownloadDownload
30HX84WX22D30"84"22"None / 18" / 30"Brackets: UDB1, UDB2DownloadDownloadDownload
30HX84WX30D30"84"30"None / 18" / 30"Brackets: UDB1, UDB2DownloadDownloadDownload
30HX84WX38D30"84"38"None / 18" / 30"Brackets: UDB1, UDB2DownloadDownloadDownload
30HX98WX30D30"98"30"None / 18" / 30"Brackets: UDB1, UDB2DownloadDownloadDownload
30HX98WX38D30"98"38"None / 18" / 30"Brackets: UDB1, UDB2DownloadDownloadDownload

Downloads

Sales Flyer (PDF)

Two-page brochure with features and model chart.

Download

Universal Bracket (PDF)

UDB1 and UDB2.

Download

Galvanized White Paper (PDF)

White Paper.

Download

Warranty (PDF)

Warranty.

Download